Complesso residenziale Via Parma

Anno: 2018-2020
Luogo: Comune di Torino (Via Parma)
Committente: NEWCOS s.r.l (privato)
Incarico: Progettazione preliminare, definitiva, esecutiva e direzione lavori
Categoria: Architetture
Team: LSB Architetti associati, Ing. F. Loffredo, Ing. L. De Giorgis, Ing. G. Marcon
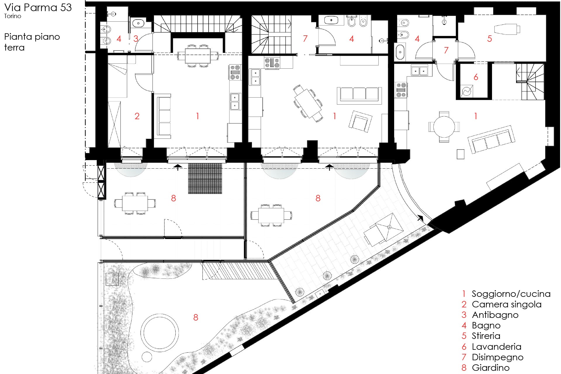
L’edificio è collocato nei pressi del Campus Einaudi, nell’isolato tra le vie Parma, Reggio, Modena e Messina. L’intervento prevede il cambio di destinazionè d’uso e il recupero a fini abitativi del sottotetto.
Il volume è costituito da una manica che si sviluppa lungo un cortile interno ad uso esclusivo e comprende tre unità residenziali duplex costituite ognuna da due piani fuori terra: un piano terreno da cui si accede attraverso il giardino privato e un piano sottotetto collegato tramite una scala interna. Completa ogni unità un piano interrato adibito a locali multifunzione e una cantina. Le unità abitative sono dotate di un sistema impiantistico e tecnologico all’avanguardia che garantisce la classe energetica A4.
Il progetto di riqualificazione propone una tipologia abitativa immersa nel verde con forte rapporto tra interno ed esterno.
Questo contesto intercetta le aspettative di famiglie e giovani professionisti sensibili ai nuovi stili di vita come la sensibilità per l’ambiente, il compfort abitativo e favorisce le relazioni interpersonali tra vicini. L’attività progettuale è stata svolta in modalità interoperativa su piattaforma BIM.