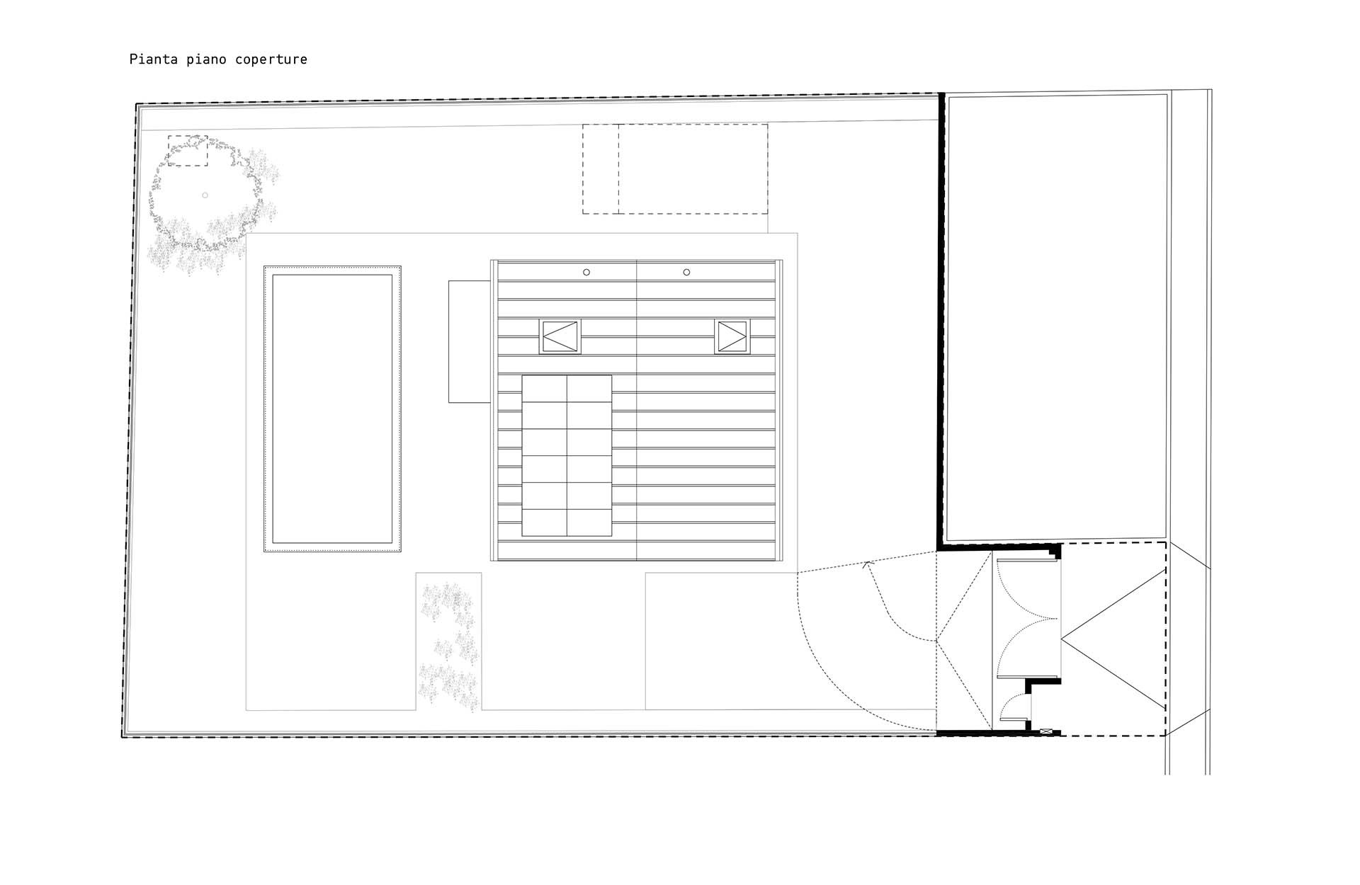
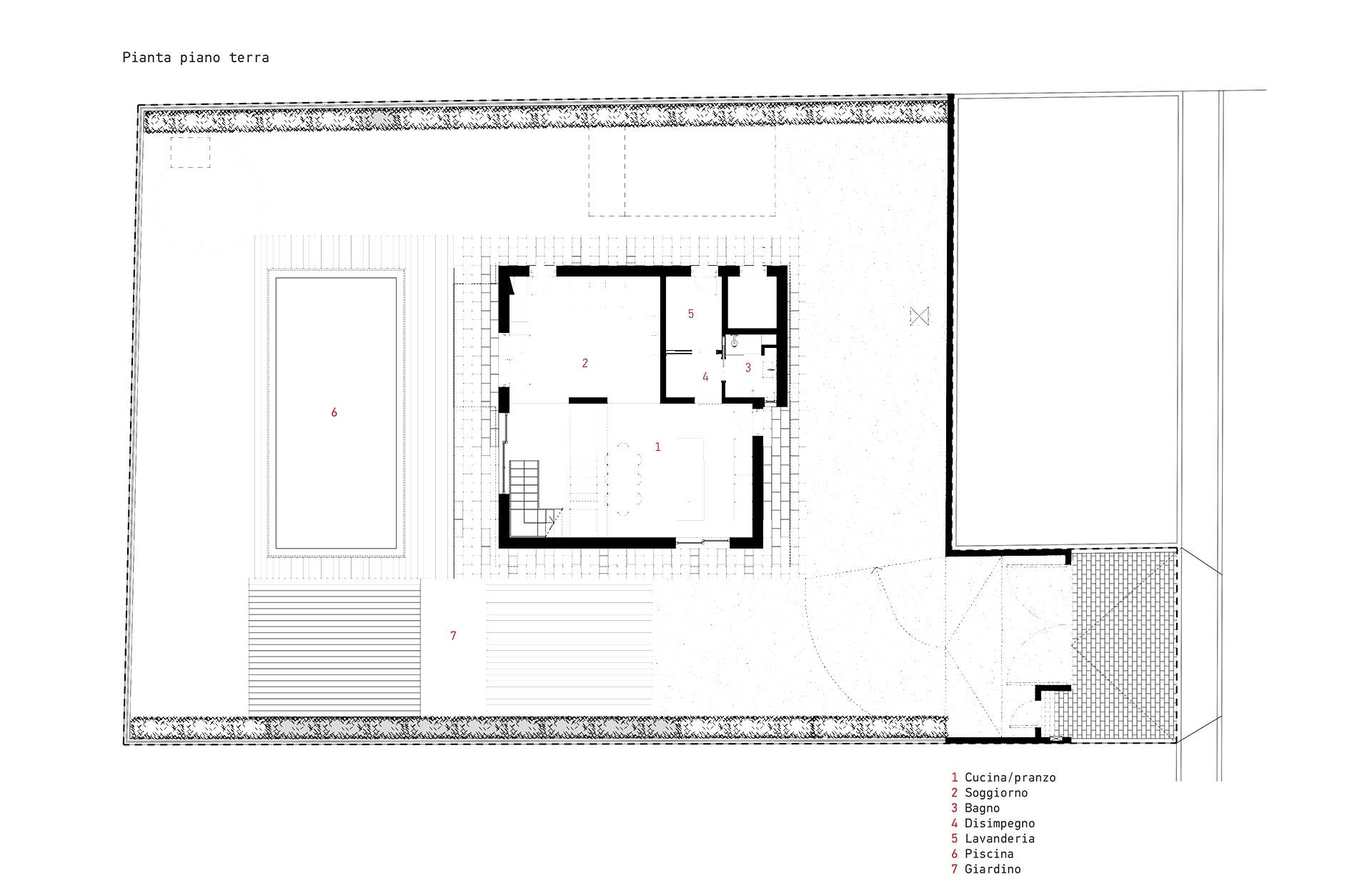
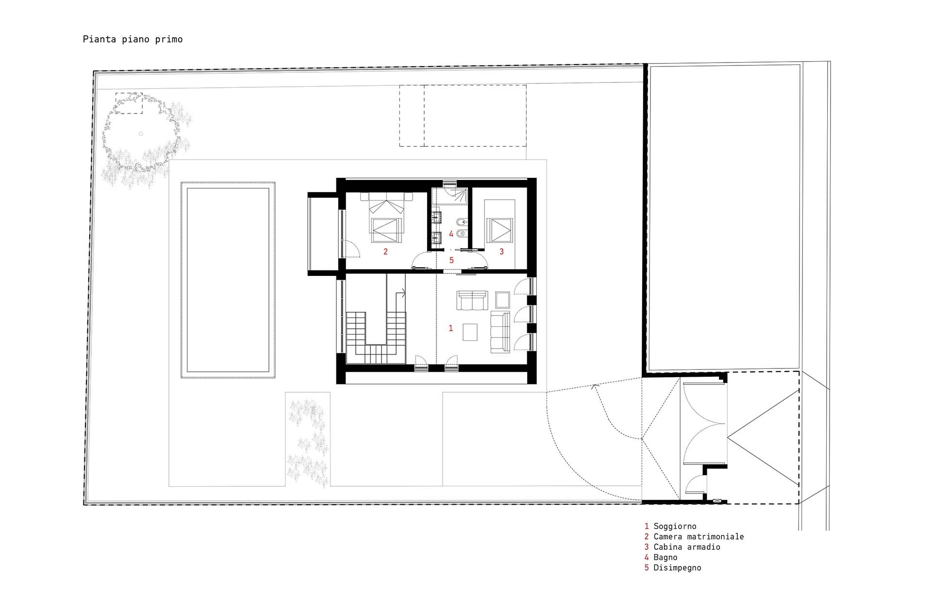
CASA FT

Anno: 2017-2019
Luogo: San Pietro Mosezzo (No)
Committente: Privato
Incarico: Progettazione preliminare, definitiva, esecutiva e direzione lavori
Categoria: Architetture
Team: LSB architetti associati, ing. F. Grappone
Una casa unifamiliare prefabbricata in legno immersa nelle risaie del novarese.
L’abitazione si sviluppa su due piani ed è caratterizzata da un luminoso soggiorno a doppia altezza in cui la scala scenografica, che conduce alle camere del primo piano, permette la completa percezione dei volumi e la apre alla vista suggestiva del territorio circostante. La casa si caratterizza per la notevole compattezza dei volumi e per la sostanziale opacità delle pareti a cui fa da contraltare la totale apertura del fronte Ovest e Sud: un equilibrio tra la volontà di rendere la casa estremamente efficiente a livello energetico e il desiderio di percepire il cambio delle stagioni, di captare e di modulare la luce solare durante tutto l’anno e di godere della vista del giardino e della piscina.
Realizzata in pannelli di legno xlam, una tecnologia che ha permesso di pensare ad una casa prefabbricabile e assemblabile a secco, la struttura è leggera e performante, veloce da realizzare come fosse la sovrapposizione di fogli di carta, sostenibile, ecologica e riciclabile.
Un cantiere 4.0, pulito e tecnologico.
Il tetto a due falde e le pareti ventilate del primo piano sono rivestite in doghe metalliche Prefa FX.12: il loro design irregolare crea un affascinante gioco di luci e ombre che varia al variare della posizione del sole.
(progetto pubblicato sul portale Professione architetto)

PHOTO CREDITS: Marlegno, Alessandra Dosselli Photo

PUBBLICAZIONI:

MARLEGNO

Articolo Professione Architetto