Castello abbaziale Sant'Ambrogio

Anno: 2002 - 2008
Luogo: Sant'Ambrogio (Torino)
Committente: Comune di Sant'Ambrogio di Torino
Incarico: Progettazione preliminare, definitiva, esecutiva e direzione lavori.
Categoria: Architetture
Team: LSB architetti associati, Studio Ruffino-Musso, Studio Vinardi, Studio Ata, M. Ramello, M. Paris.
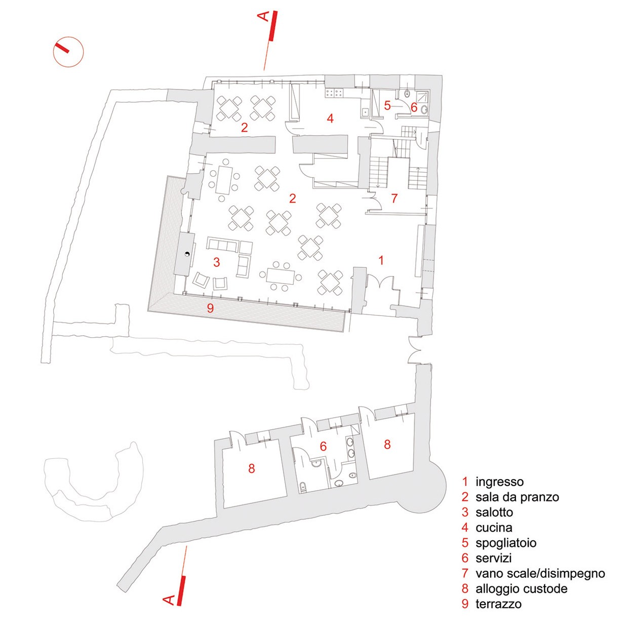
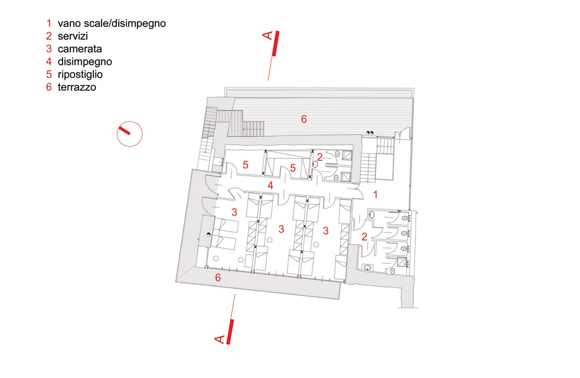
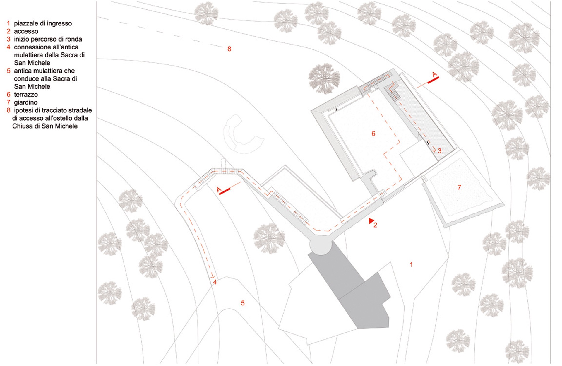
Il progetto di rifunzionalizzazione e restauro del castello abbaziale di sant’Ambrogio si inserisce nel sistema originario dei percorsi di accesso alla Sacra di San Michele (l’edificio simbolo della Regione Piemonte). La struttura si sviluppa su tre livelli ed è concepita per accogliere fino a una cinquantina di ospiti. L’edificio è costituito da un’ossatura portante in acciaio (intervento di tipo reversibile a cui è demandata anche la funzione di controventamento orizzontale e verticale per le murature ancora emergenti); i tamponamenti esterni sono costituiti da pareti vetrate, in grado di inserirsi con il minor impatto nel perimetro delle murature esistenti e contemporaneamente sfruttare al massimo il soleggiamento; il terrazzo sulla copertura esalta la visione verso la valle di Susa e permette di fruire del recuperato percorso di ronda dell’antico manufatto medievale. Questa struttura si pone quale tappa e rifugio per i pellegrini della storica Via Francigena.

RICONOSCIMENTI:
- Progetto finalista alla Medaglia d’Oro all’Architettura Italiana 2009;
- Premio OAT-Architetture rivelate 2009.

FOTOGRAFIE: Beppe Giardino e archivio LSB.

PUBBLICAZIONI:

Articolo ARCHILOVERS

Articolo 011+

ITALIA ARCHITETTURA, vol.n.3, UTET, a cura di L. Prestinenza Puglisi