Centro Fisioterapico

Anno: 2016
Luogo: Biella
Committente: Centro Fisioterapico dr. Stagno
Incarico: Progettazione preliminare, definitiva, esecutiva e direzione lavori
Categoria: Interni
Team: LSB architetti associati, Ecoprogetti, G. Ghedini, P. Trazzi, A. Mantovani
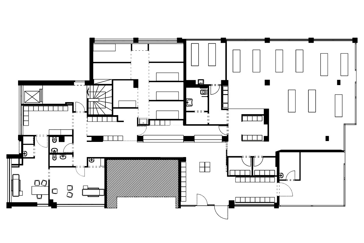
Una sfida ai limiti dell'azzardo: ristrutturare completamente lo storico centro fisioterapico Stagno in tre settimane ad agosto. Il restyling ha riguardato la riorganizzazione del layout dei due piani della struttura per complessivi 500 mq., gli impianti e gli arredi. Si è lavorato intensamente su sistemi costruttivi e di assemblaggio a secco e sull'organizzazione del cantiere.