Hamburgheria Eataly

Anno: 2014 - 2015
Luogo: Verona
Committente: La Granda di Eataly
Incarico: Manuale di progettazione e direzione artistica dei punti vendita; progettazione preliminare, definitiva ed esecutiva
Categoria: Interni
Team: LSB architetti associati
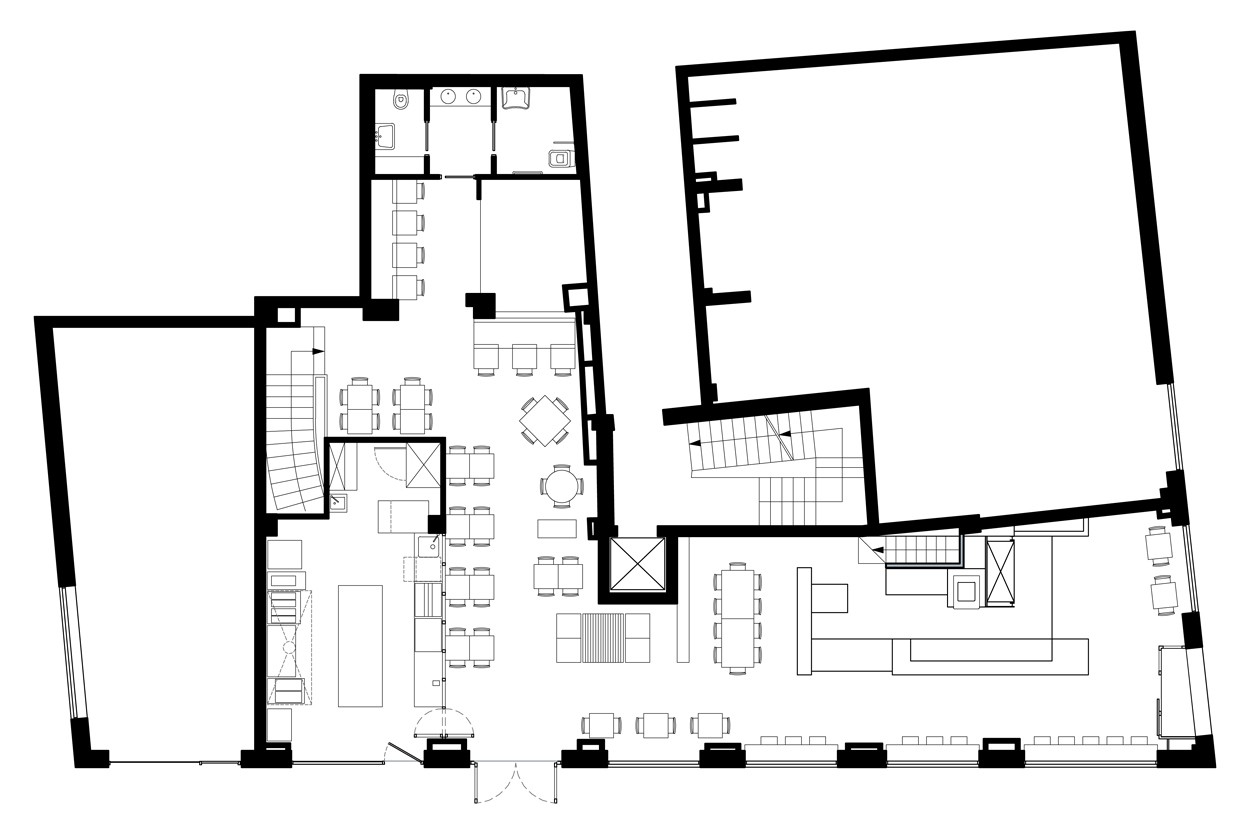
L’Hamburgheria di Eataly nasce come progetto per coniugare il piacere dei prodotti di alta qualità di Eataly con una ristorazione attenta, veloce e a prezzi sostenibili.
Gli stessi principi sono stati da noi declinati durante la stesura del manuale di corporate identity che guida la progettazione dei locali, i quali nell’atmosfera e nei materiali off rono al cliente un’esperienza di qualità a 360 gradi. Il progetto si ispira all’essenza degli edifi ci industriali e dei laboratori di produzione. Gli impianti a vista, il ferro naturale, gli intonaci ed i mattoni preesistenti evidenziano questo approccio informale che viene ulteriormente enfatizzato dalla cucina a vista e dall’organizzazione degli spazi che favorisce la convivialità.