Palazzo all'Orto - ex Teatro Antonianum

Anno: 2006 - 2012
Luogo: Padova
Committente: Est Capital SGR Spa
Incarico: Studio di fattibilità, piano di recupero, progettazione preliminare, definitiva e d esecutiva.
Categoria: Architetture
Team: LSB architetti associati, R&S Engeneering, Studio Camera Mossetto, Studio RS, Intertecno.
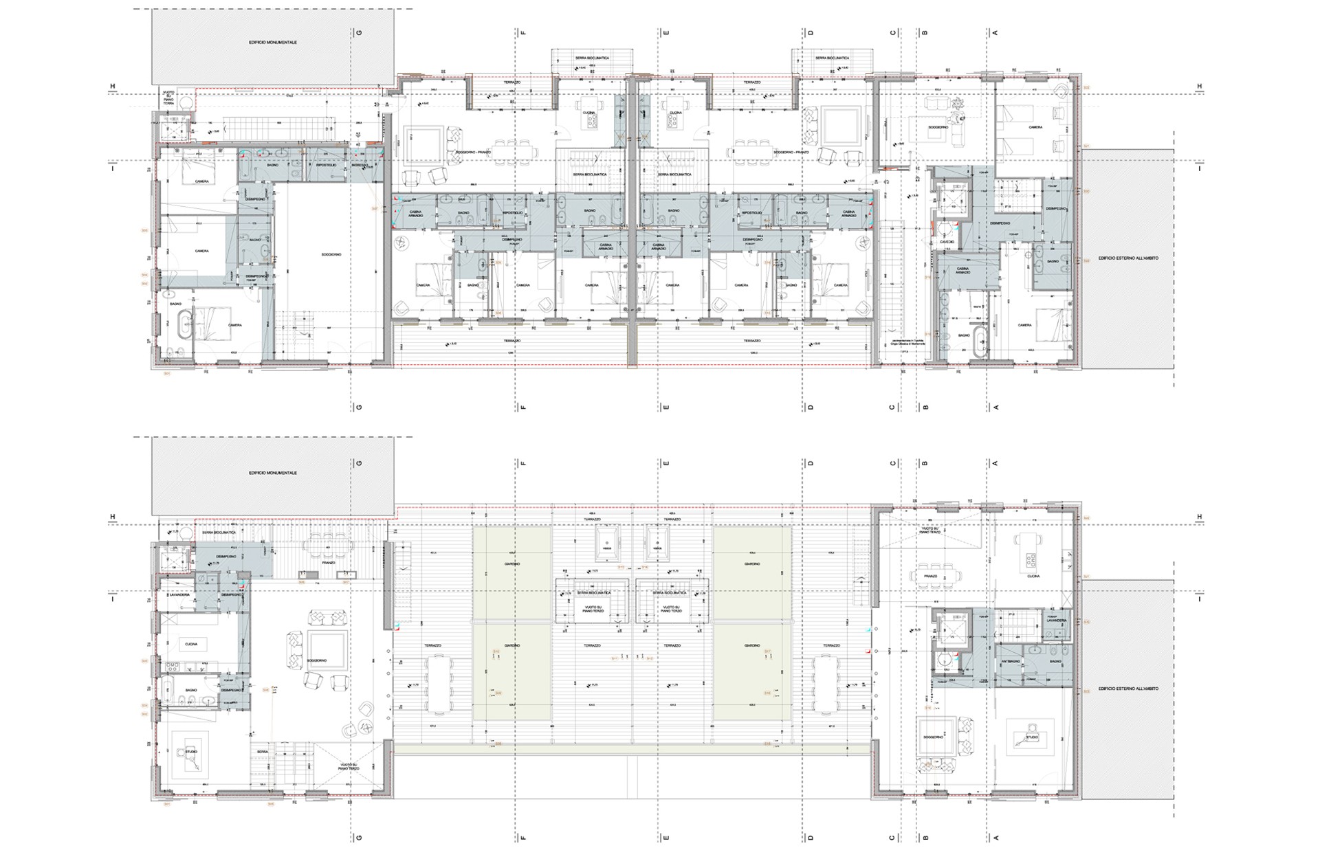
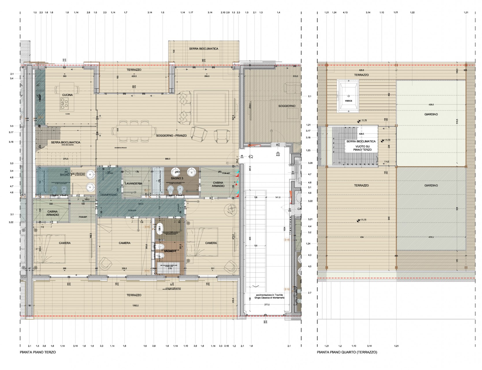
Un progetto tra passato e futuro.
La macchina teatrale si trasforma oggi in machine à habiter. Una macchina tecnologica, una casa intelligente come palcoscenico della vita: l'architettura è qui ricerca e visione.
Un edificio che si trasforma nella sua pelle: verso strada l' alternarsi del giorno e della notte ne modifica le chiusure e le aperture, verso il giardino il rincorrersi delle stagioni ne varia i colori e i profumi.
Eco-loft realizzati con materiali contemporanei capaci di comunicare il vigore, l'energia di chi li abita. La luce diventa progetto filtrando dalle ampie vetrate mentre la natura si fa architettura risalendo dall'orto botanico e invadendo i terrazzi e le serre. Un edificio tecnologico in cui creare e cambiare i propri scenari quotidiani: domotica, risparmio energetico, sistemi di sicurezza, reti di comunicazione, garage meccanizzati.