Casa PM

Anno: 2006 - 2011
Luogo: Givoletto (To)
Committente: Privato
Incarico: Progettazione preliminare, definitiva, esecutiva e direzione lavori.
Categoria: Architetture
Team: LSB architetti associati, Bottega Studio.
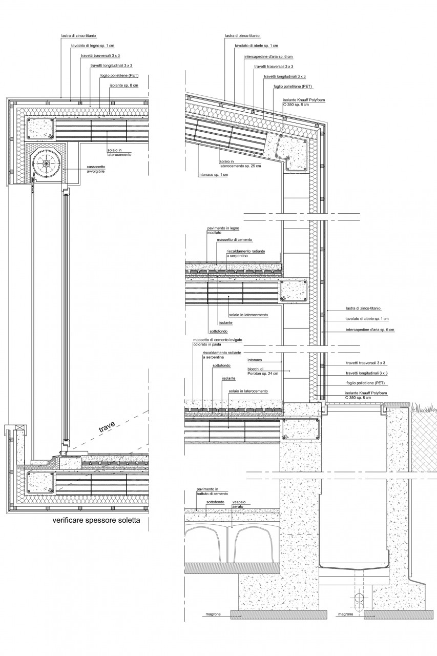
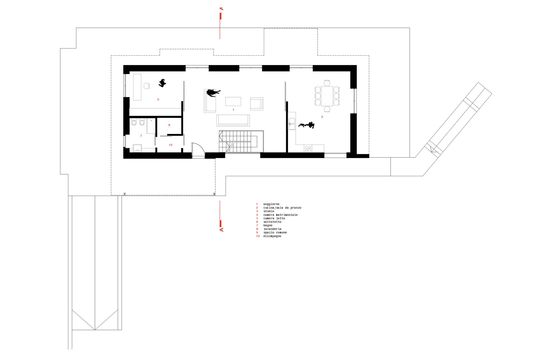
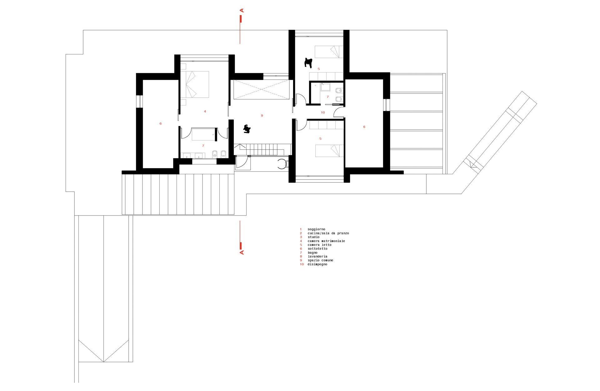
L’edificio è immerso nel parco Regionale della Mandria, a poca distanza dalla Reggia di Venaria Reale e si sviluppa su due livelli fuori terra di cui il piano terreno destinato alla zona giorno e il primo alle camere da letto e le zone studio più un piano interrato che ospita un’autorimessa-officina. I volumi sono caratterizzati da un corpo principale in muratura intonacata su cui si “posa” una scocca di zinco color terra che riveste il lato nord e parte della copertura. Al piano superiore due volumi di zinco color antracite si protendono verso il territorio per mezzo di grandi finestrature. Tutti gli spazi sono progettati in modo da ridurre al minimo gli affacci sui lotti confinanti, ma al contempo sono studiati per favorire la relazione tra interno ed esterno e la percezione del verde, del giardino al piano terreno e del territorio dal primo piano. Si è cercato un “dialogo ideale” con due opere di grande valore presenti nelle immediate vicinanze. La prima è la “Bizzarria”, casino di caccia della famiglia Savoia, a poche centinaia di metri dalla villa, che si pone quale punto di avvistamento sul parco e che serviva anche da rifugio privato. La seconda si trova nel Comune di Pianezza ed è la sede degli uffici della società F.A.T.A., opera degli anni ’70 del maestro brasiliano Oscar Niemeyer.

PUBBLICAZIONI:

Il Sole 24 Ore-Progetti&Concorsi - 3-8 sett. 2012

Articolo ARCHILOVERS