Antonianum - ex Collegio Universitario

Anno: 2006 - 2012
Luogo: Padova
Committente: Est Capital SGR Spa
Incarico: Studio di fattibilità, progettazione preliminare, definitiva e d esecutiva - restauro e rifunzionalizzazione
Categoria: Architetture
Team: LSB architetti associati, R&S Engeneering, Studio Camera Mossetto, Studio RS, Intertecno.
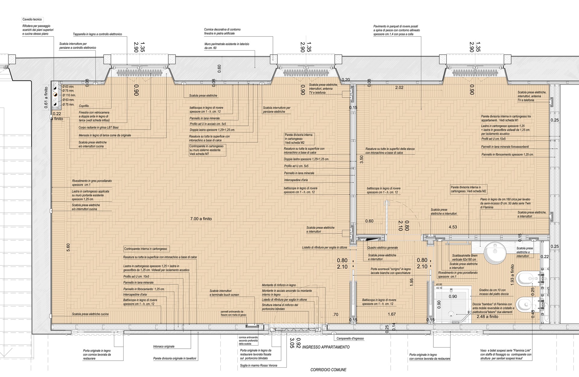
ll complesso edilizio dell’Antonianum è collocato nel centro storico di Padova, in un lotto prospiciente l’Orto Botanico (patrimonio dell’Unesco). L’edificio principale fu progettato e realizzato dall’architetto Gino Peressutti nel 1906. In tempi successivi (1930-1960) il Collegio fu ampliato con la realizzazione di altri edifici minori. L’obiettivo del progetto è stata la completa ristrutturazione dell’edificio e la sua riconversione funzionale ad uso terziario e residenziale attraverso l’epurazione del corpo principale dalle superfetazioni al fine di ricondurlo al suo aspetto originario introducendo una rinnovata identità attraverso la relazione con nuove volumi dal carattere contemporaneo. Il principio ispiratore del progetto è stato quello di “affogare” l’intervento nel verde creando un unicum con l’Orto Botanico. Il palazzo all’Orto sorge sul sedime del vecchio Teatro ed è stato pensato come una sorta di elemento di dispositivo di connessione tra l’Orto Botanico e il resto della città, grazie anche alla sua destinazione di spazio pubblico. Dal cortile interno, del quale si vuole preservare tutta la raffinata atmosfera della preesistenza, si insinua una macchia verde che grazie alle strutture della facciata trova il giusto sostegno per giungere fino alla cima, scavalcare le terrazze, ridiscendere lungo la facciata di via Briosco coronando il concetto di verde passante.