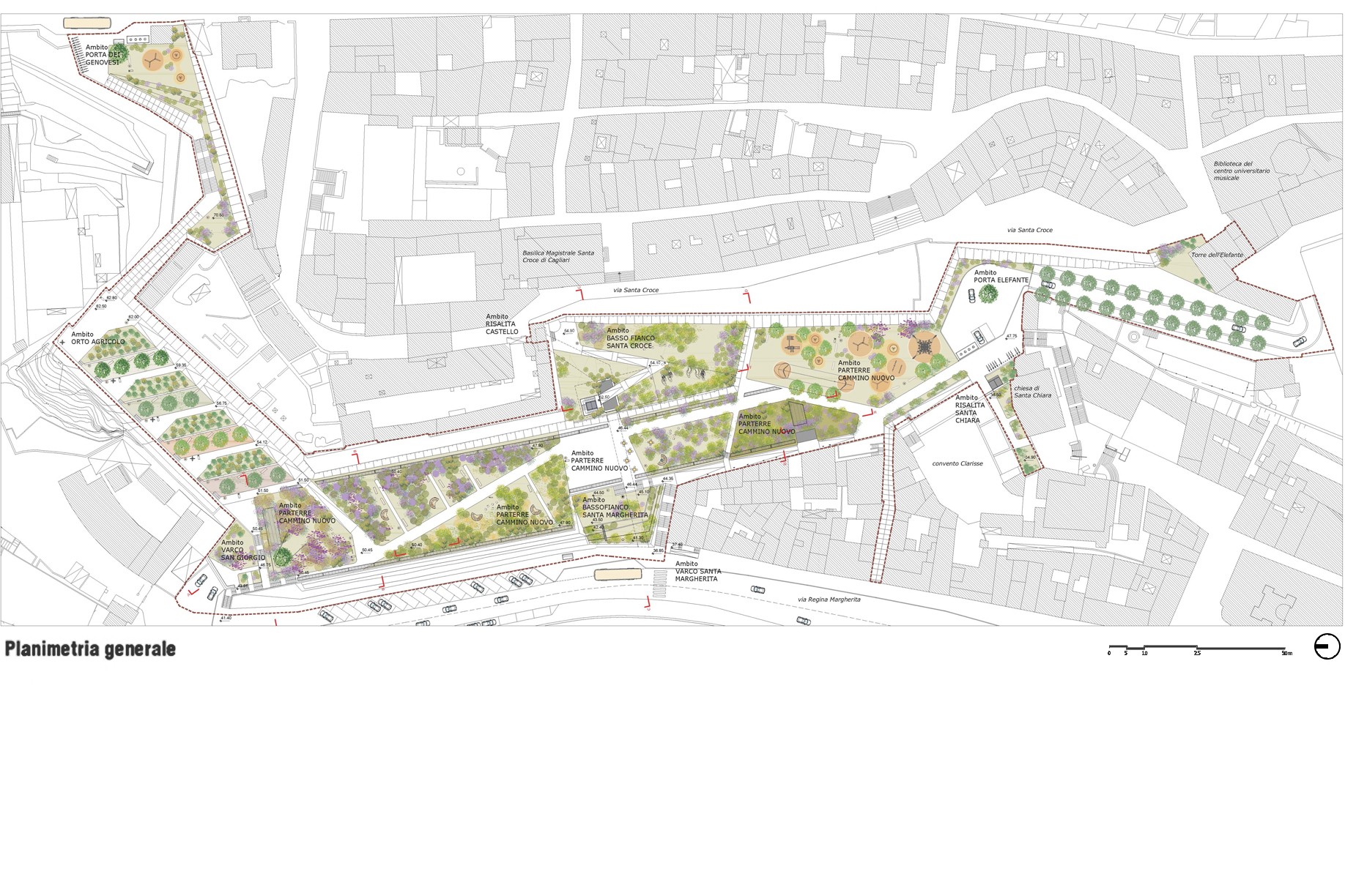
Cammino Nuovo

Anno: 2014
Luogo: Cagliari
Committente: Impresa LIS Srl
Incarico: Progettazione preliminare, definitiva ed esecutiva.
Categoria: Architetture
Team: LSB architetti associati, Icis srl, Consorzio Taiga, Seacoop, EL srl
engineering, Studio tecnico Renato Lazzerini.
Il parcheggio multipiano del Cammino Nuovo si inserisce nel “Sistema coordinato di parcheggi di interscambio nel centro storico - Parco del Cammino Nuovo” predisposto dall’amministrazione comunale cagliaritana in vista della candidatura quale città italiana Capitale Europea della Cultura 2019. Il sito oggetto dell’intervento si presenta oggi come un’area destinata a parcheggio a raso racchiusa tra i due quartieri storici di Stampace e Castello.
Il progetto prevede la realizzazione di tre piani di parcheggio che potranno ospitare circa 340 posti auto con la conseguente liberazione dello spazio a cielo aperto, attualmente occupato dagli autoveicoli, che potrà dare vita a un nuovo parco naturalistico urbano. Grazie all’interramento delle auto, si restituirà al sito un’opportuna e legittima naturalità, ricercando un equilibrio tra le preesistenze storico-culturali: un luogo che presenterà per molti versi un’alta valenza naturalistica perché in grado di connettere da un punto di vista ecologico i “polmoni verdi” urbani rappresentati dell’orto botanico e dai giardini pubblici di Cagliari in un unico sistema verde. L’area in questione quindi dovrà ridefinire la relazione di mutua convivenza fra le parti di centro storico che attualmente sembrano non rispondere adeguatamente alle logiche di una corretta pianificazione paesaggistica e ambientale. A livello architettonico il parcheggio si presenta come una sorta di “hub” della mobilità e dovrà garantire nella sua gestione “evoluta” nuovi sistemi di cortesia offerti alla cittadinanza e ai turisti come ad esempio il sistema del “car valet” che può essere di valido aiuto alle fasce deboli di utenti (disabili, anziani, mamme con bambini).